ASPIRE PROPERTIES

Villa · Nueva construcción

Alicante · Aspe
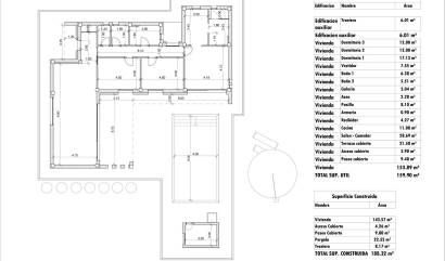
188m2
13.172m2
3
3
 
498.000€

Villa · Nueva construcción

Alicante · Aspe
498.000€

Características

Habitaciones: 3
Baños: 3
Construidos: 188m2
Parcela: 13.172m2
Piscina:
Private pool
Garden
Gated
near schools
Air Conditioning: Pre-Installed
Double Bedrooms: 3
Number of Parking Spaces: 1
Location: Mountain
Terrace: 36 Msq.
Parking - Space
Useable Build Space: 159 Msq.
Beach: 25000 Meters

Descripción


Localización

Volver a los resultados de la búsqueda
Volver a los resultados de la búsqueda

Solicitar información

Responsable del tratamiento: Mark Springham, Finalidad del tratamiento: Gestión y control de los servicios ofrecidos a través de la página Web de Servicios inmobiliarios, Envío de información a traves de newsletter y otros, Legitimación: Por consentimiento, Destinatarios: No se cederan los datos, salvo para elaborar contabilidad, Derechos de las personas interesadas: Acceder, rectificar y suprimir los datos, solicitar la portabilidad de los mismos, oponerse altratamiento y solicitar la limitación de éste, Procedencia de los datos: El Propio interesado, Información Adicional: Puede consultarse la información adicional y detallada sobre protección de datos Aquí.
Contactar WhatsApp