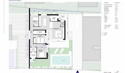
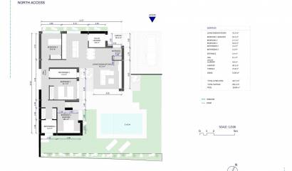
VILLAS NEUVES À ALTAONA GOLF RESORT, MURCIA Nouvelle construction résidentielle de belles villas à Altaona Golf resort, Murcia. Villas neuves avec cuisine ouverte, 3 chambres, 2 salles de bains, terrasse, jardin privé avec piscine et place de parking. L'air conditionné froid/chaud est conçu avec une machine à air conditionné entièrement installée. La porte d'entrée de la maison est équipée d'une serrure blindée avec des charnières anti-jalousie. Les armoires intérieures sont équipées d'une mezzanine, d'une barre de suspension, d'une commode et d'une étagère intermédiaire. Le projet dispose de vastes zones communes avec de nombreux espaces verts, des chemins et des zones de détente. Situé dans un environnement privilégié où l'on peut vivre tranquillement, en contact avec la nature et la montagne, on obtient une qualité de vie, de l'air frais et des espaces ouverts. Caractéristiques : - Jardin, piscine et parking privé - Sécurité 24/7 et tranquillité - Efficacité énergétique A+ - Méthode de construction innovante - Espaces verts et jardins communs avec verger Caractéristiques optionnelles : - Panneaux solaires - Cuisine Produits blancs - Système de gaz - Borne de recharge pour voiture électrique - Cheminée - Ascenseur (pour les villas à 2 étages) - Espace de rangement supplémentaire dans le couloir Résidentiel situé à Altaona Golf à seulement 15 minutes en voiture du centre de la capitale Murcie et 20 minutes des plages, vous pouvez profiter de la tranquillité et de la sécurité offerte par le terrain de golf de 18 trous et le confort de vivre à proximité de tous les services. L'aéroport de Murcie Corvera est à seulement 15 minutes en voiture. 607
Cette information donnée ici est sujette à des erreurs et ne fait partie d'aucun contrat. L'offre peut être modifiée ou retirée sans préavis. Les prix n'incluent pas les coûts d'achat
© 2026 ASPIRE PROPERTIES ● Mentions légales ● Intimité ● Cookies ● Plan du site
Conception & CRM: Mediaelx
Tout d’abord, merci de nous contacter.
Nous avons reçu votre demande concernant la référence du bien:APRD-78785. Un de nos agents vous contactera dans les meilleurs délais.
Tout d’abord, merci de nous contacter.
Nous avons reçu une demande de rapport si vous abaissez le prix de la propriété avec la référence: APRD-78785
En attendant, jetez un œil à cette sélection de propriétés similaires qui pourraient vous intéresser: