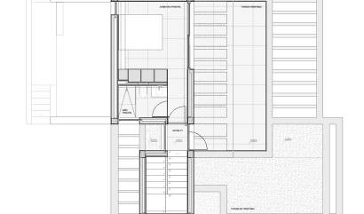
Villa de luxe neuve avec vue sur la mer à La Alberca Polop Design contemporain dans un cadre montagneux paisible Cette villa neuve exceptionnelle est située à La Alberca, un quartier résidentiel calme dans les montagnes de Polop. Entourée de forêts et de nature, la propriété offre une vue panoramique sur la mer Méditerranée, les montagnes et la ville historique de Polop. Conçue avec une élégance architecturale verticale, la villa allie intimité, fonctionnalité et vie intérieure-extérieure harmonieuse. Polop est un charmant village de la Costa Blanca, connu pour son atmosphère traditionnelle et sa beauté naturelle. La villa est proche de tous les services de La Nucia, notamment des commerces, des restaurants, des centres sportifs et des écoles. Les plages et les villes côtières animées telles que Benidorm et Altea sont à seulement 15 minutes. Une distribution bien pensée sur trois niveaux Le rez-de-chaussée vous accueille avec un hall d'entrée doté d'un placard intégré et de toilettes pour invités. Ce niveau comprend une chambre avec salle de bains attenante et des portes-fenêtres coulissantes allant du sol au plafond qui s'ouvrent sur une terrasse latérale privée. Le salon et la salle à manger lumineux et ouverts communiquent directement avec une terrasse couverte d'une pergola et la piscine privée d'eau salée, créant ainsi un style de vie harmonieux entre intérieur et extérieur. Le dernier étage est exclusivement réservé à la suite parentale. Cet étage privé offre une chambre avec salle de bains attenante donnant accès à une spectaculaire terrasse de 40 m² et offrant une vue panoramique imprenable sur la mer et les montagnes, garantissant un maximum d'intimité et de confort. Le sous-sol comprend deux chambres supplémentaires avec de grandes fenêtres donnant sur une cour en contrebas magnifiquement conçue qui remplit l'espace de lumière naturelle. Une salle de bains commune, une buanderie entièrement équipée avec des appareils Haier et deux pièces techniques et de rangement spacieuses complètent cet étage. Caractéristiques haut de gamme et efficacité énergétique La villa comprend des finitions de haute qualité et des systèmes avancés, tels que : Cuisine centrale avec îlot et appareils électroménagers BOSCH intégrés Plans de travail en pierre naturelle à l'intérieur et à l'extérieur Fenêtres panoramiques avec vitrage renforcé anti-UV Système de climatisation aérothermique Mitsubishi Pré-installation du chauffage au sol Classe d'efficacité énergétique A Pré-installation pour système domotique Parking privé pour deux véhicules Le jardin méditerranéen paysager avec arrosage automatique et une élégante cour au niveau inférieur renforcent l'intimité et la détente. Le toit est prêt pour l'installation de panneaux solaires. Excellent emplacement et distances Centre de Polop à 2 km La Nucia à 4 km Plages de Benidorm à 12 km Altea à 10 km Villaitana Golf à 14 km Aéroport d'Alicante à 65 km Découvrez votre refuge privé à Polop Cette villa moderne avec vue sur la mer offre design, intimité et confort dans l'un des cadres naturels les plus attrayants de la Costa Blanca. Contactez-nous dès aujourd'hui pour organiser une visite privée et acquérir votre nouvelle maison à La Alberca Polop. 607