ASPIRE PROPERTIES

Villa · Nieuwbouw projecten

Alicante · Aspe
223m2
13.172m2
4
3
 
614.000€

Villa · Nieuwbouw projecten

Alicante · Aspe
614.000€

Kenmerken

Slaapkamers: 4
Badkamers: 3
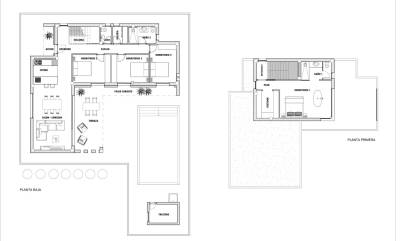
Gebouwd: 223m2
Plot: 13.172m2
Zwembad: Ja
Number of Parking Spaces: 1
Double Bedrooms: 4
Location: Mountain
Terrace: 34 Msq.
Parking - Space
Beach: 25000 Meters
Private pool
Garden
Gated
near schools
Air Conditioning: Pre-Installed

Beschrijving


Plaats

Keer terug naar zoekresultaten
Keer terug naar zoekresultaten

Informeer nu

Responsable del tratamiento: Mark Springham, Finalidad del tratamiento: Gestión y control de los servicios ofrecidos a través de la página Web de Servicios inmobiliarios, Envío de información a traves de newsletter y otros, Legitimación: Por consentimiento, Destinatarios: No se cederan los datos, salvo para elaborar contabilidad, Derechos de las personas interesadas: Acceder, rectificar y suprimir los datos, solicitar la portabilidad de los mismos, oponerse altratamiento y solicitar la limitación de éste, Procedencia de los datos: El Propio interesado, Información Adicional: Puede consultarse la información adicional y detallada sobre protección de datos Aquí.
Contact WhatsApp