ASPIRE PROPERTIES

Villa · New Build

Alicante · Los Montesinos
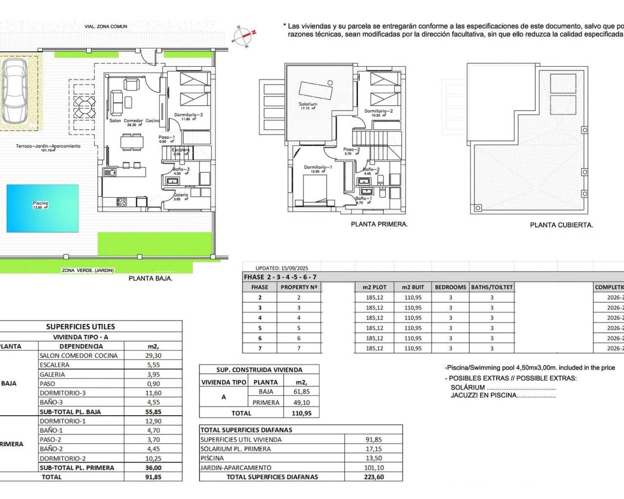
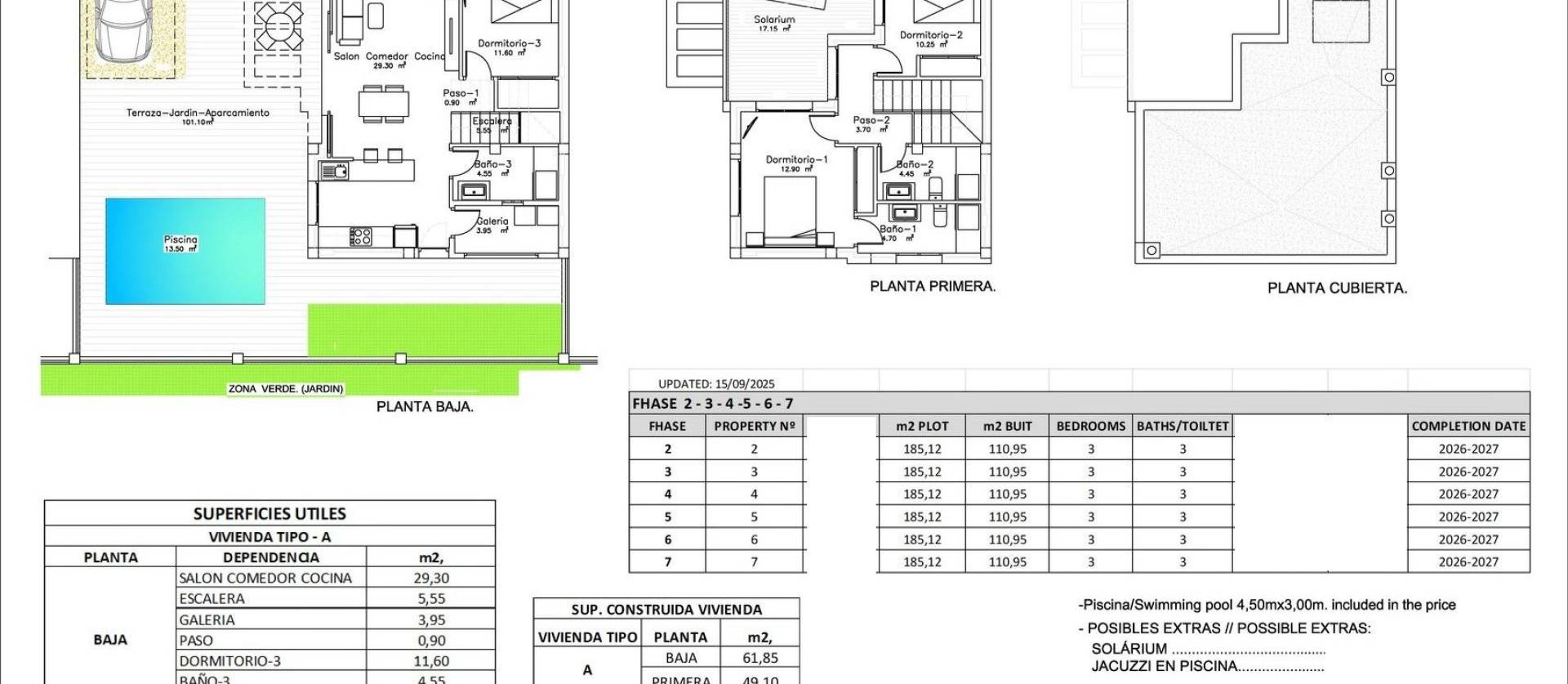
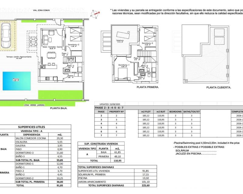
110m2
185m2
3
3
 
369.000€

Villa · New Build

Alicante · Los Montesinos
369.000€

Features

Bedrooms: 3
Bathrooms: 3
Built: 110m2
Plot: 185m2
Pool: Yes
Private pool
Garden
Laundry room
Gated
near schools
Air Conditioning: Pre-Installed
Double Bedrooms: 3
Number of Parking Spaces: 1
Beach: 9000 Meters
Useable Build Space: 91 Msq.
Location: Rural, Urbanisation
Parking - Space
Terrace: 118 Msq.

Description


Location

Turn back to search results
Turn back to search results

Enquire now

Responsable del tratamiento: Mark Springham, Finalidad del tratamiento: Gestión y control de los servicios ofrecidos a través de la página Web de Servicios inmobiliarios, Envío de información a traves de newsletter y otros, Legitimación: Por consentimiento, Destinatarios: No se cederan los datos, salvo para elaborar contabilidad, Derechos de las personas interesadas: Acceder, rectificar y suprimir los datos, solicitar la portabilidad de los mismos, oponerse altratamiento y solicitar la limitación de éste, Procedencia de los datos: El Propio interesado, Información Adicional: Puede consultarse la información adicional y detallada sobre protección de datos Aquí.
Contact WhatsApp